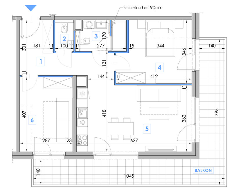
Apartament

Budynek C Lokal 315

Kondygnacja: Kondygnacja III

Powierzchnia całkowita: 62.22 m2

Ilość pomieszczeń: 3P+AK

Status: Wolne

Pomieszczenia:


Korytarz: 9.44m2

Salon + aneks kuchenny: 23.41m2

Sypialnia: 12.19m2

Sypialnia: 11.11m2

Łazienka: 4.37m2

Toaleta: 1.70m2

Balkon: 23.80m2

Pobierz kartę apartamentu